ファストショップ イビラプエラ
ブラジル、サンパウロ市のオスカー・ニーマイヤーのデザインで知られる、イビラプエラ公園地区にたつ、生活グッズ店のインテリア。
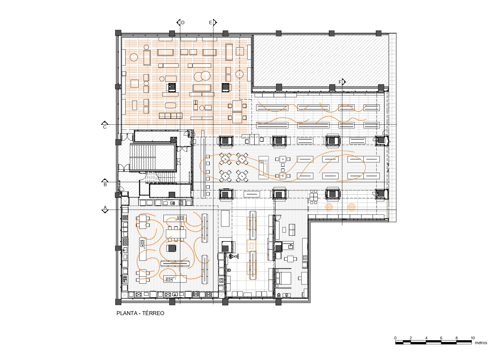
商品を中心とした空間ではなく、日常生活をベースにした、ライフスタイルの感じられる空間をデザインした。売り場を、リビング、キッチン、スタジオ、ユーティリティスペース、キッズ、といった「部屋」に分け、それぞれの部屋にふさわしい象徴的な「光」を中心にして空間を構成した。
透ける三軸織物・アルミリングメッシュ・簾等、異なる素材を用いて「光」をデザインし、それぞれの部屋に独特の空気感を与えた。








