Beijing Tea House
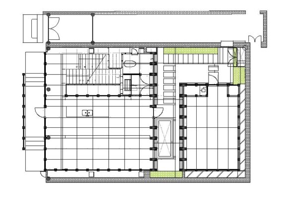
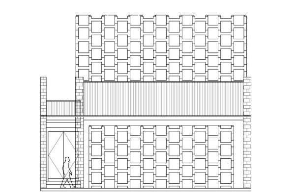
北京の中心部、故宮(Forbidden City)の東華門の目の前にたつ伝統的四合院スタイルの建築を、ポリエチレン製の中空のブロックを用いて再生した。
回転成形の方法を用いて4タイプのポリエチレンブロックを作り、それを組み合わせて積み上げることで、増築部分の構造体とした。北京ではレンガを用いた組積造の建築が一般的であり、ポリエチレンブロックは、現代の軽く透明な素材による組積造のヴァリエーションともいえる。ポリエチレンブロックは断熱性能を有し、また、光を透過して、かつての四合院に使われていた紙と同じように、やわらかな光に満ちた禅の空間を生成する。










