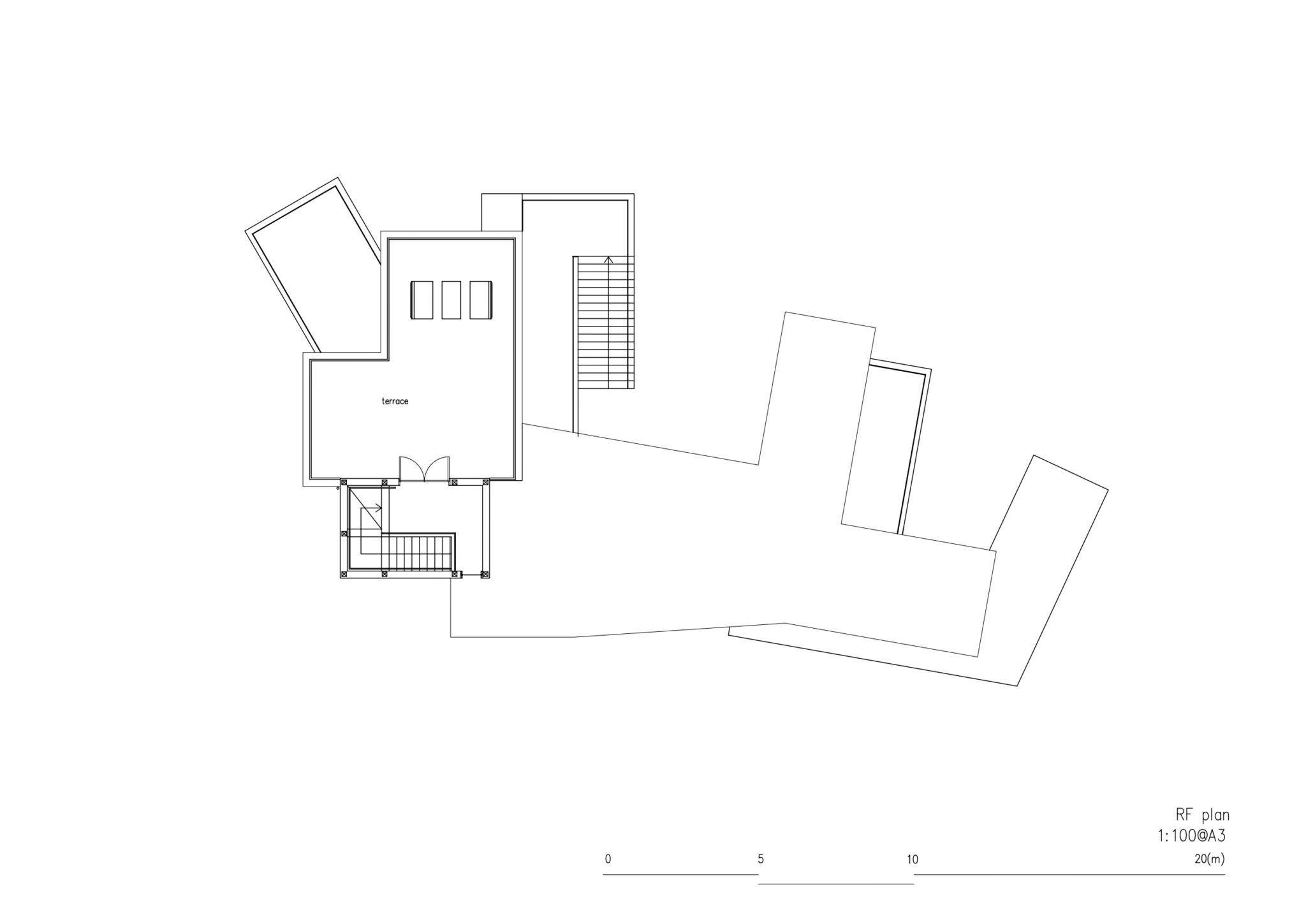
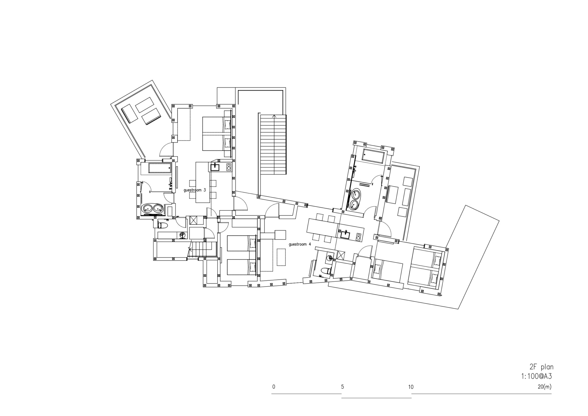
GFC Awajishima Grandesia – de Class Wood Villa
On a hill overlooking the Seto Inland Sea, we designed an experimental wooden hotel. The form was derived by manipulating the form of a stack of wooden boxes.
First, the wooden trailer houses JYUBAKO we designed were placed on the site, and by multiplying its basic units, we created a situation in which small boxes were scattered throughout the landscape.
Gaps and crevices between the boxes were given semi-outdoor functions such as “holes” and “terraces,” creating diverse intermediate areas between the boxes and nature. These gaps and crevices also generated various corners and niches in the plan, contributing to the diversity and fluidity of the spatial experience.
In keeping with the building’s formal theme, furniture and fixtures were also designed out of stacking boxes creating a cohesive aesthetic across scales.




















