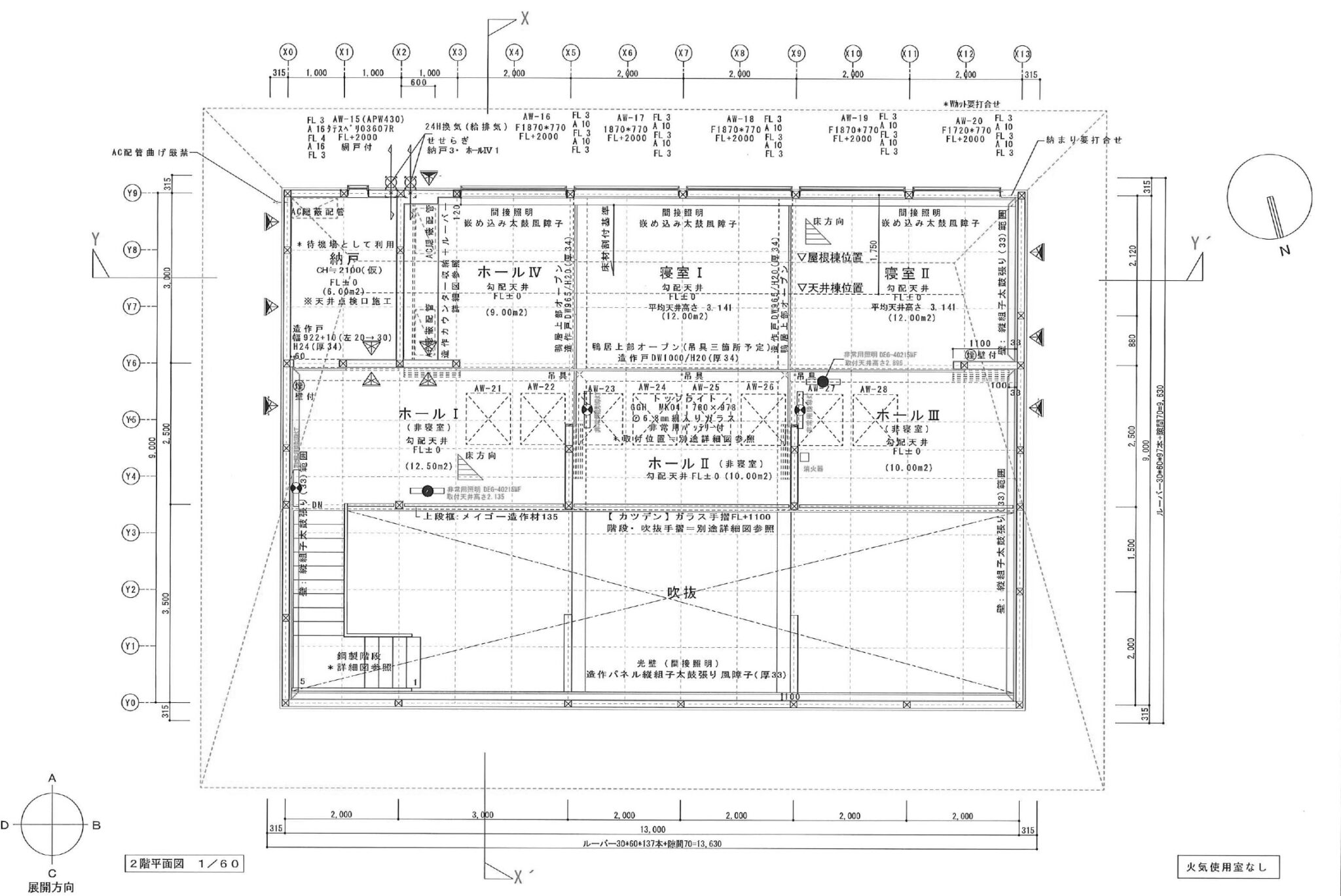
日本ハウス55周年記念モデルハウス 檜・一室の家
日本の民家の伝統的な知恵である「田の字プラン」と、可動パーティションを、光と風を通す60×30の断面寸法の繊細なヒノキスクリーンで建物全体を覆うことで、伝統建築の格子戸のもつ透明感を建築全体へと拡張した。
室内の間仕切は、すべて和紙の太鼓張りとすることで、開放感とプライバシーを両立させた。
現代のワークとホームの境界が消滅した現代の流動的なライフスタイルに、日本の知恵の新バージョンが解答を与えた。

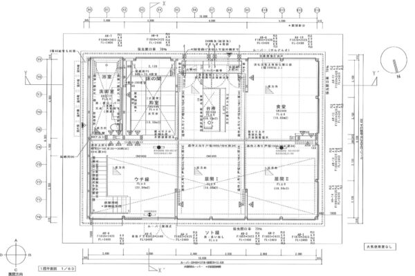
日本の民家の伝統的な知恵である「田の字プラン」と、可動パーティションを、光と風を通す60×30の断面寸法の繊細なヒノキスクリーンで建物全体を覆うことで、伝統建築の格子戸のもつ透明感を建築全体へと拡張した。
室内の間仕切は、すべて和紙の太鼓張りとすることで、開放感とプライバシーを両立させた。
現代のワークとホームの境界が消滅した現代の流動的なライフスタイルに、日本の知恵の新バージョンが解答を与えた。