ジャパン・ハウス サンパウロ
外務省による日本文化の海外発信拠点としてスタートしたJapan House プロジェクトの第一号。
サンパウロの中心街パウリスタ通りに面する銀行の支店を改修し、木のファサードと和紙のインテリアを持つ、温かな「文化の家」が、大都市の中に出現した。
都市の中に森が生まれたようなオーガニックなファサードは、木曾ヒノキの線材をランダムに組み、カーボンファイバーで補強することで実現した。鉄の7倍の引っ張り強度を持つカーボンファイバーを用いることで、支柱なしの大スパンが可能となった。インテリアにはアルミ製エキスパンドメタルを和紙の原料となる液体状のコウゾに漬けて作られたメッシュを用いた。和紙でできた雲のようなメッシュで、空間はやわらかく覆われた。和紙作家小林康生とのコラボによって、現代的でありながらも、和を感じさせる透明な空間が生まれた。
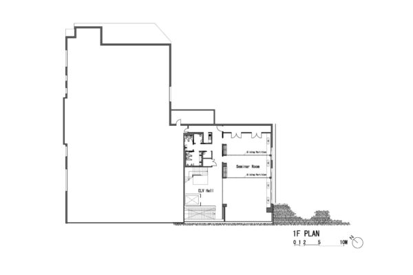
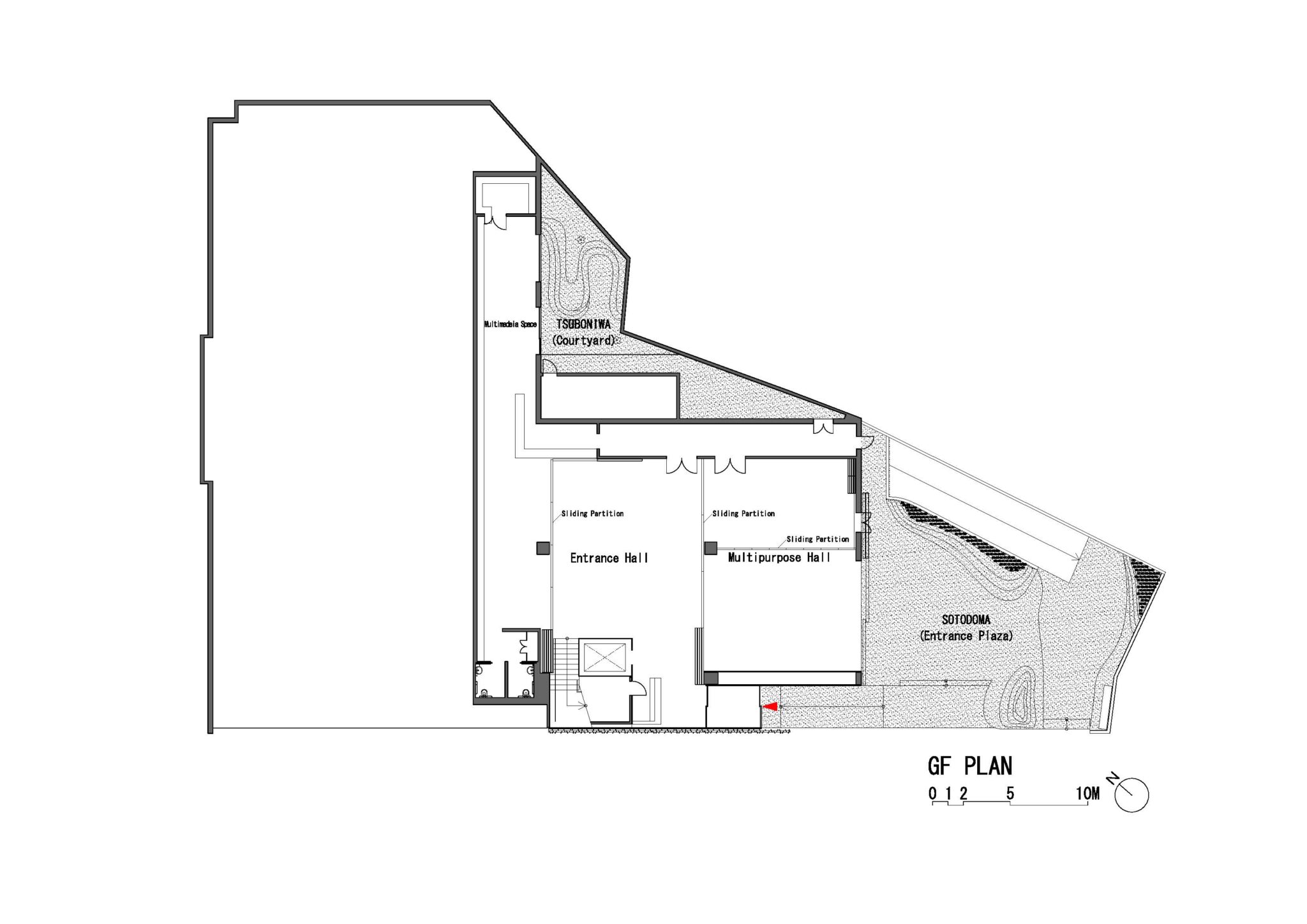
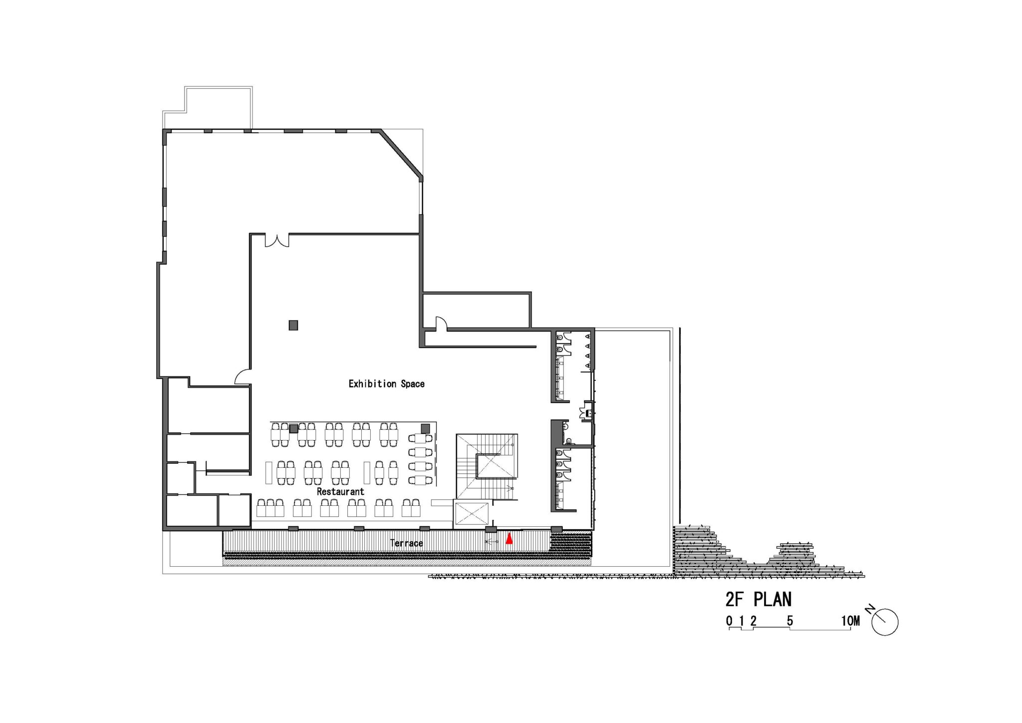
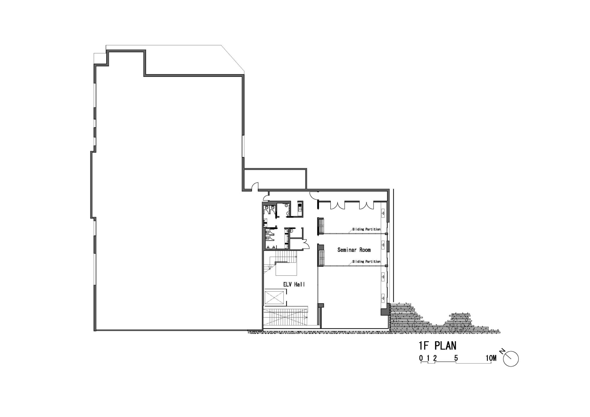
ミュージアム、レクチャースペース、ショップ、レストランからなる複合的空間は、サンパウロの新しい観光スポットとなった。










