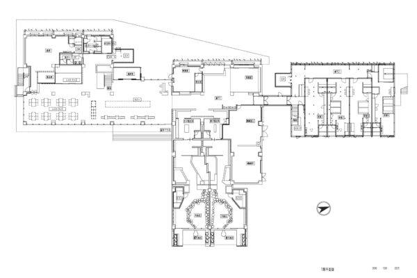
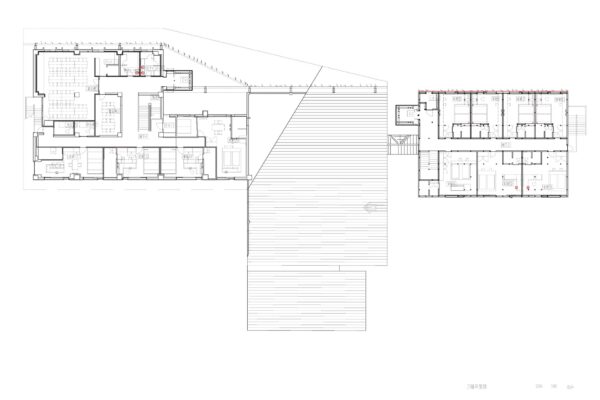
Kushiro Marsh Kayanuma Tourist Accommodation – Pon・Pon Yu
We renovated and revitalized the only natural hot spring lodging facility in the Kushiro Marshland using wood.
The strong façade made of thick-skinned oak wood creates a place where people can relax and heal their hearts in harmony with the harsh natural environment.
By exposing the various cut and damaged wooden columns of the existing building in the interior, a “forest of columns” was created in response to the forest outside. Using a translucent fabric with subtle coloration like natural petals created by a local herb-dyeing technique, a lighting fixture that emits light like the aurora borealis was born.
“Pon-pon-yu” means ‘little hot water’ in the Ainu language.




















